Nhà 2 tầng mái Thái với kích thước 7x15m là một sự lựa chọn phổ biến và đặc biệt được ưa chuộng tại ngoại thành và khu vực nông thôn. Cùng khám phá ngay những mẫu nhà mái thái 2 tầng 7x15m đẹp và những lưu ý khi thiết kế, xây dựng loại nhà này trong bài viết dưới đây nhé.
Đặc điểm thiết kế nhà 2 tầng mái Thái 7x15m
Kích thước: Diện tích 7x15m cung cấp không gian đủ lớn để tạo ra một không gian sống tiện nghi và thoải mái cho gia đình.
Số tầng: Thiết kế 2 tầng tận dụng tối đa diện tích đất, mang lại không gian sống đa dạng và linh hoạt.
Kiến trúc mái Thái: Mái Thái với độ dốc nhẹ và hình dáng truyền thống mang lại vẻ đẹp truyền thống và thoải mái.
Công năng: Bố trí các phòng chức năng phù hợp, từ phòng khách, phòng ngủ đến nhà bếp và phòng ăn, tạo ra không gian sống tiện nghi và thoải mái.
Ưu điểm nhà 2 tầng mái Thái 7x15m
Thẩm mỹ: Với kiến trúc đặc trưng của mái Thái, ngôi nhà mang đến vẻ đẹp truyền thống và gần gũi với thiên nhiên.
Công năng: Thiết kế thông minh giúp tận dụng diện tích một cách hiệu quả, từng phòng được bố trí hợp lý.
Thoáng mát: Mái Thái giúp tạo ra không gian thông thoáng, giúp ngôi nhà luôn mát mẻ, dễ chịu trong mọi thời tiết.
Chịu lực, chống nóng: Mái Thái được xây dựng chắc chắn, chịu lực tốt và có khả năng chống lại các yếu tố thời tiết như mưa gió, nắng nóng.
Tiết kiệm chi phí: Thiết kế đơn giản, vật liệu xây dựng thông dụng giúp giảm thiểu chi phí xây dựng.
Chi phí thiết kế – xây dựng nhà 2 tầng mái Thái 7×15
Chi phí thiết kế và xây dựng nhà 2 tầng mái Thái 7×15 có thể biến đổi tùy thuộc vào công năng, vật liệu xây dựng và các yếu tố khác.
Thông thường chi phí thiết kế nhà mái Thái trong khoảng 100.000 – 150.000 VNĐ/m2 tùy vào phong cách, đơn giá của từng đơn vị. Để xây nhà 2 tầng diện tích 7x15m, chi phí thiết kế dao động 20- 30 triệu.
Chi phí thi công nhà 2 tầng mái Thái 7x15m sẽ tùy vào nhu cầu của nhu cầu của gia chủ, rất khó để đưa ra một con số chung, có thể dao động từ 1 – 1,5 tỷ.
Tuy nhiên, với sự tư vấn của các chuyên gia, bạn có thể tối ưu hóa chi phí mà vẫn đảm bảo chất lượng công trình.
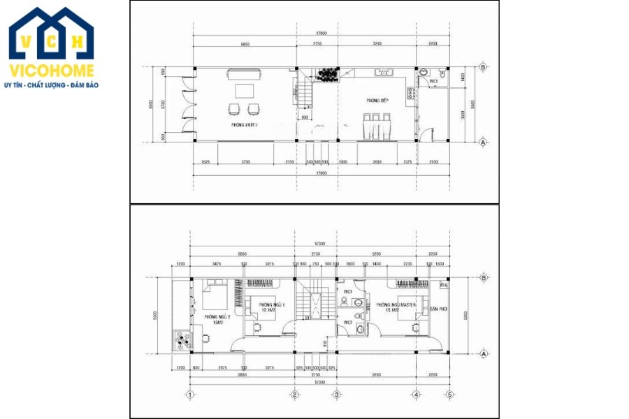
Gợi ý công năng nhà 2 tầng mái Thái 7×15
Tầng 1: Phòng khách, gian thờ, phòng bếp – ăn, phòng vệ sinh, phòng ngủ.
Tầng 2: Phòng ngủ master, 2 phòng ngủ phụ, phòng làm việc, phòng vệ sinh.

